|
Project |
|
|
Pelton Hydroelectric Dam, Deshutes River, Oregon (Warm Springs Indian Reservation) |
|
|
July 1982 |
|
|
Picture List |
|
| Perspective View of Dam drawn by William E. Barlow, 1982 | |
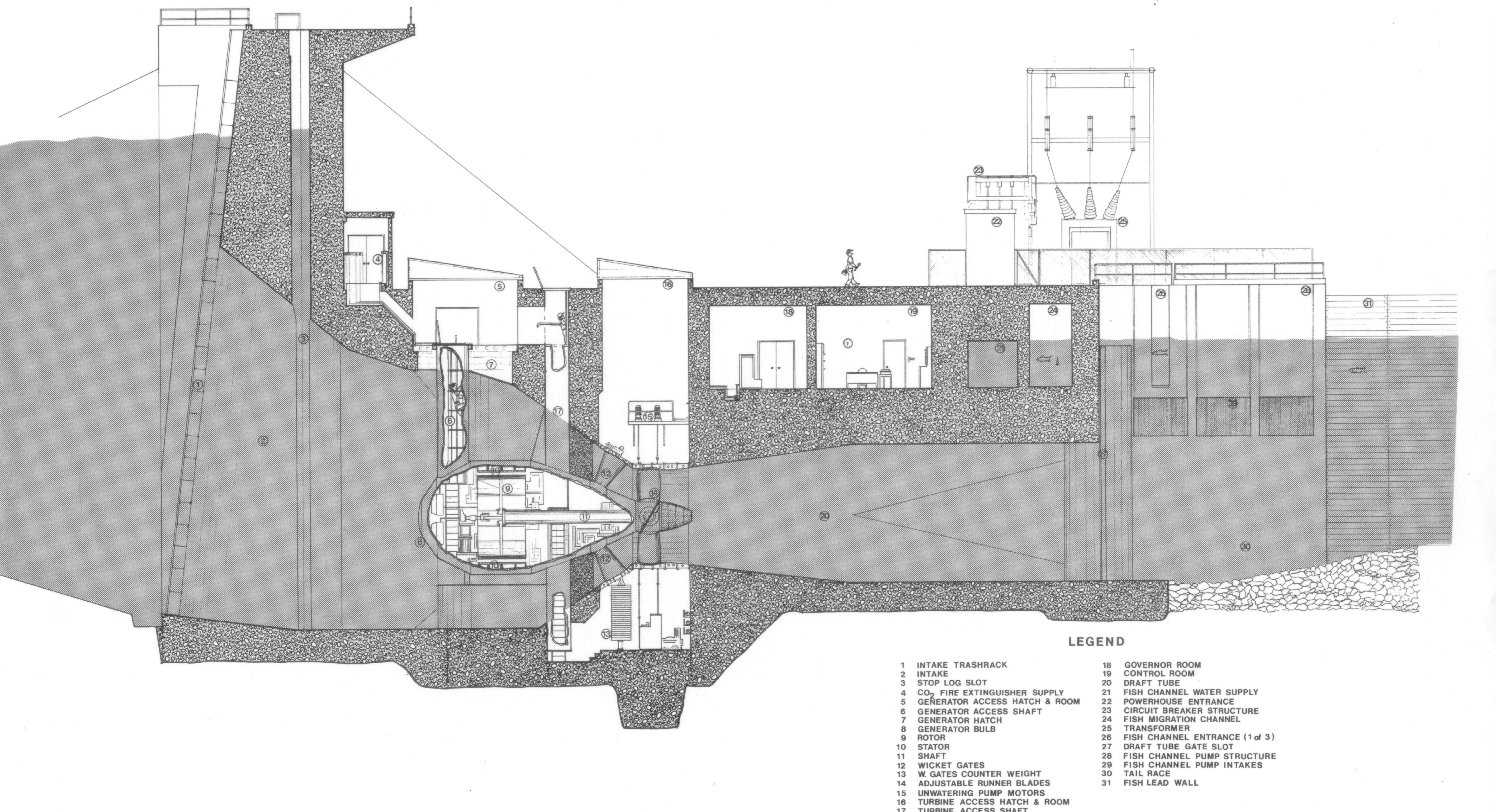
| Cross Section of Dam drawn by William E. Barlow, 1982 | |
| Picture of Dam | |